Vrijstaande villa Duinparel II

Bouwnummer 25 

Zodra u Duinrijk binnenrijdt, glijdt de dagelijkse drukte van u af. U wordt omarmd door vrijheid, superieure luxe en ultiem wooncomfort. Deze zeer royale vrijstaande villa staat garant voor ultiem vrij wonen en volop genieten van rust, privacy en geborgenheid.

Deze vrijstaande villa heeft een unieke verbinding met de natuur door de prachtige ligging en biedt met een royaal woonoppervlak van ca. 270 m2 een luxueuze woonbeleving.

De villa heeft een riant terras, twee dakterrassen, een garage in het souterrain en een tal aan mogelijkheden om uw droomhuis te realiseren. Dit is een ware parel, gelegen op een toplocatie.

Kenmerken

  • Zeer royal vrijstaande villa
  • Energielabel A+++
  • Woonoppervlak vanaf ca. 270 m2
  • 5 slaapkamers
  • Riant terras van ca. 95 m2 op het noordoosten
  • Badkamer voorzien van luxe sanitair en tegelwerk
  • Met garage
  • Energiezuinig en gasloos
    Diverse opties om uw droomhuis te realiseren

Opties

  • Plaatsen personenlift
  • Vergroten technische ruimte
  • Diverse opties om slaapkamer(s) te vergroten of samen te voegen
  • Creëren bergkast in de kelder
  • Keuken vergroten
  • Creëren van bijkeuken
  • Diverse keukenposities en keukenindelingen
  • Creëren extra badkamer in de kelder, op de begane grond en/of de eerste verdieping
  • Badkamer op de eerste verdieping vergroten
  • Openslaande deuren in de achtergevel
  • PV-panelen

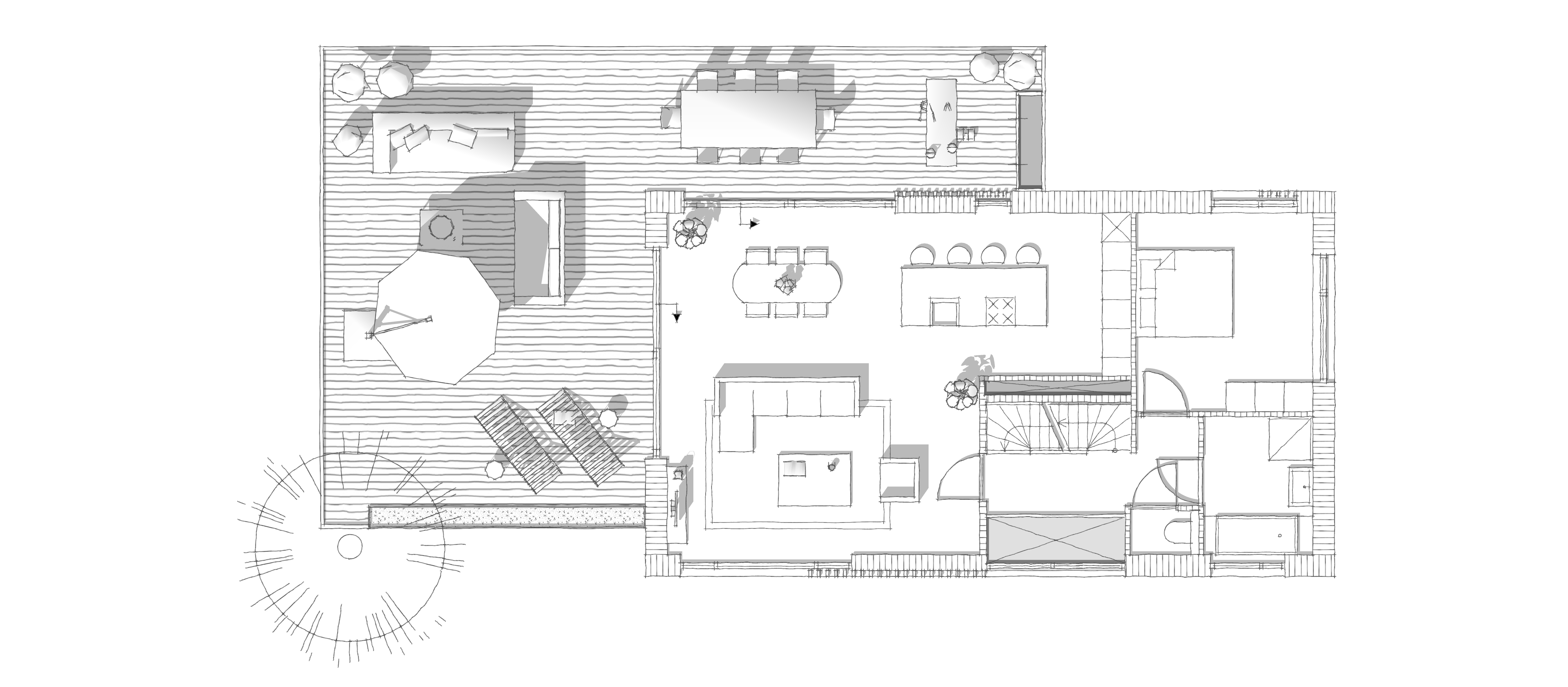
Plattegronden

Souterrain

Begane grond

1e Verdieping

Terras

Schets indeling begane grond

Bouwnummer Woonopp Tuinligging Prijs
25 270m2 noordwest Verkocht

© Thunnissen Groep 2026
De beelden, impressies, maten, oppervlakten en prijzen zijn zo nauwkeurig mogelijk vastgesteld. Aan de indicatieve waarden kunnen geen rechten worden ontleend.
Privacyverklaring